潛水推流器
 |
 |
不銹鋼潛水推流器 |
碳鋼潛水推流器 |
一、 潛水推流器的結構簡介及性能特點:
1.結構緊湊、體積小、重量輕。操作維護簡單、安裝方便快捷、使用壽命長。
2.片具有自潔功能,可防雜物纏繞、堵塞。
3.曝氣系統配合使用可使能耗大幅度降低,充氧量明顯提高,有效防止沉淀。
4.電機繞組為F級絕緣,防護等級為IP68,選用一次潤滑免維護進口軸承,具有油室泄漏檢測和電機繞組過熱保 護功能,使電機的工作更加安全可靠。
5.機械密封的摩擦付材質為耐腐蝕的碳化鎢,所有緊固件均為不銹鋼材質。
二、潛水推流器的產品說明:
配用功率范圍:3.0-7.5KW
葉輪直徑范圍:1100-2500mm
葉輪轉速范圍:35-115r/min
推力范圍:≤4275N
材質:葉漿采用進口聚氨酯材料,電機殼鑄鐵,哈爾濱優質軸承,具體情況可根據客戶要求定做產品
QJB1.5/4-1800/2-42P
其中:
QJB------潛水推流器的拼音縮寫
1800-----葉輪名義直徑
42-------葉輪轉速(r/min)
1.5------電機功率(KW)
材質:
P -------聚氨酯 C -------碳鋼 S -------不銹鋼
三、適用范圍:
潛水推流器可在下列條件下正常連續運行:
★ 介質溫度不超過40°C ★ 介質的PH值在5-9
★ 介質密度不超過1150KG/M^3 ★長期潛水運行,潛水深度一般不超過20米
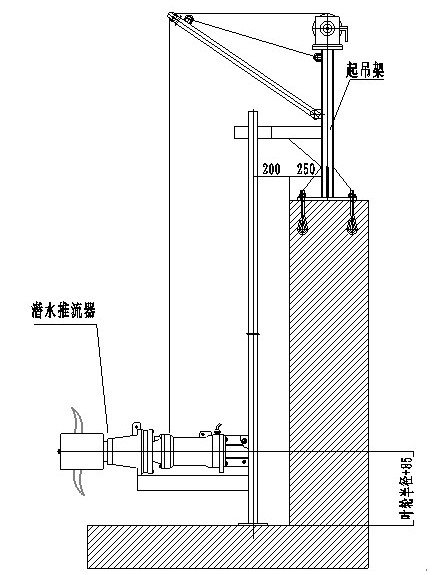
四、潛水推流器的系統安裝圖:
五、潛水推流器的選型表:
 |